GREY design studio: home furniture home
vanities
6' 4' 3' 2'
furniture homenext
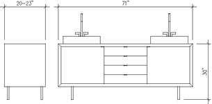
6' vanity

6' vanity: walnut, option A

view spec sheet (pdf, 137k)
view wood options
view vanity in an example setting